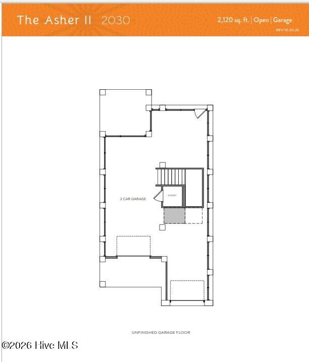
Presenting The Asher II, a thoughtfully designed semi-custom home available as proposed construction—build your dream home with flexible design options and upgraded features. This coastal-inspired plan offers a distinctive three-level layout with a ground-level two-car garage, garage storage closet, and direct interior access for everyday convenience.
The main living level features a well-defined great room flowing into the dining area and kitchen, creating an efficient layout for daily living and gatherings. The kitchen offers upgrade options such as a wall oven layout, flush island, and added windows. A private study, powder room, and outdoor living options—including a covered or optional screened porch—add versatility. Additionally, you can choose an guest bedroom with ensuite option on the main level, making this a 4 BR / 3BA home.
The upper level includes a spacious primary suite with walk-in closet and optional tray ceiling, two secondary bedrooms, a shared full bath, and centrally located laundry. Bath layouts may include luxury showers, garden tubs, and dual vanities.
Located in Carolina Beach with no HOA, this proposed home is just blocks from beach access and near local shops, dining, the boardwalk, and routes to Wilmington. The Asher II delivers functional coastal living with customizable features throughout.
Must use True Homes as the builder.